Our Projects

  1. Home
  2. Project
  3. Pearl GTL – C8 ETP Package

Project Details

Client:

Al Jaber Transport & GEN.CONT

End-User:

Pearl GTL (SHELL)

Location:

Ras Laffan, Qatar

Duration:

2007 - 2011

Services:

Construction

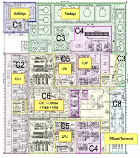
Pearl GTL – C8 ETP Package

Plant Description

Gas to liquid (GTL) plant designed to produce 140,000 bpd of GTL as well as 120,000 BPD of condensate, LPG and ethane in two trains.

Brief Project Description

Project Highlights

Pearl GTL ETP C8 -Biotreater Tank & Clarifier Tanks